На месте бывшего военного городка в Степянке возводят новый комплекс для Центра изоляции правонарушителей (ЦИП). Сегодня он располагается на переулке Окрестина и после событий 2020 года стал символом пыток и невыносимых условий содержания. Однако и на старое здание у властей есть планы: вероятно, скоро оно закроется на масштабный ремонт.

Согласно паспорту объекта, размещенному на строительном заборе по адресу улица Карвата, 74, с сентября 2025 года здесь ведется реконструкция здания под размещение ЦИП. Проект разработал институт «Белгоспроект», заказчиком выступает Управление капитального строительства (УКС) Мингорисполкома, а подрядчиком — Строительное управление №94 Стройтреста №1. Строительство финансируется из бюджета Минска и должно завершиться через год, в январе 2027 года.
Раньше на этом месте находилось трехэтажное здание из серого силикатного кирпича, построенное в конце 1960‑х годов как казарма отдельного учебного батальона связи ВВС (в/ч 40858). В 1997 году часть была расформирована, и последние годы здание стояло заброшенным, как и многие другие объекты бывшего военного городка в Степянке.


Подготовка к строительству началась еще летом 2023 года, а уже в июне 2024‑го был готов проект. Последние изменения по замечаниям госэкспертизы в него внесли в мае 2025 года.
Что будет внутри нового изолятора?



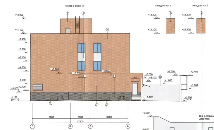
Согласно проекту, новый ЦИП ГУВД Мингорисполкома — это целый комплекс зданий. Несмотря на то, что работы официально называются реконструкцией, старую казарму сносят почти полностью, до фундамента, на котором возведут новый двухэтажный административный корпус.

Цокольный этаж административного здания отдан под спорт: здесь разместятся тренажерный зал и зал рукопашного боя. Интересная деталь: судя по размерам раздевалок, мужчин среди персонала будет втрое больше, чем женщин.

На втором этаже разместятся кабинеты начальства с ковровым покрытием вместо керамогранитной плитки, которой выполнены полы остальных помещений, комнаты отдыха, гардеробы, душевые для сотрудников, бухгалтерия, архив и прочее.
К северному торцу административного корпуса примыкает собственно изолятор — трехэтажное здание с подземным уровнем для архивов и технических помещений.

Логистика приема задержанных продумана до мелочей. Автозак заезжает прямо внутрь здания через подъемные ворота. Оттуда задержанный попадает в коридор, где его ожидают комната разбирательства и помещение для обыска с двенадцатью «стаканами» (узкими боксами размером 1,3х1 м). Далее — либо душевые без четкого разделения по полу, либо дезинфекция.
На первом этаже также располагаются комнаты отдыха персонала, приема пищи, хранения спецсредств, буфетная и технические помещения.

С первого этажа начинаются и камеры для содержания арестованных. Их здесь всего шесть: две камеры на два человека (каждая площадью 15 м2), по камере на четыре человека (18 м2), на шесть человек (26 м2) и на восемь человек (34 м2), а также карцер.
Карцеры представляют собой вытянутые помещения площадью 12 м² с маленьким окошком под самым потолком и туалетом без перегородки.
К зданию примыкают четыре закрытых прогулочных дворика размером 7х7 м.

На втором этаже расположены четыре комнаты для рассмотрения административных материалов, некоторые бытовые помещения, а также 16 камер: две на двух человек, одиннадцать на четырех человек, восемь камер на шесть человек и одна камера на восемь человек, а также карцер (размеры камер аналогичны тем, что размещаются на первом этаже).

Третий этаж в целом аналогичен второму и имеет столько же камер того же размера.
В камерах на первом этаже могут разместиться 22 человека, на втором и третьем — по 104 человека. Общая вместимость нового изолятора составит 230 человек (при минимальном требовании в задании на проектирование — 221 место). Общая площадь камер в новом изоляторе составляет около 1084 м².
Условия вряд ли можно назвать комфортными: стены и потолки будут покрашены акриловой краской прямо по бетону, стены будут мрачного серого цвета (Grau 50) перегородки в санузлах сделают из металлического профилированного настила. Правда, полы в камерах обещают сделать деревянными — значит, будет немного теплее.
Вне камер куда более уютная атмосфера: подвесные потолки и стены, покрашенные в светлый беж (Palazzo 55) в коридорах и карамельный (Caramel 55) — в помещениях для персонала.


Внешне здание архитекторы попытались сделать более современным и менее мрачным: вентилируемый фасад будет отделан под керамический кирпич, черный на цоколе и красный на остальных этажах, с помощью нанесения на штукатурку трафарета «Лондонский кирпич», что напоминает стиль лофт в модных жилых кварталах.
Территорию обнесут трехметровым забором с тремя рядами колючей проволоки «Егоза».

На территории также разместятся контрольно-пропускной пункт, ангар для хранения транспорта, пожарная насосная станция, трансформаторная подстанция и дизель-генераторная установка для резервного электроснабжения зданий.
Интересно, что из проекта убрали элементы безбарьерной среды — тактильную плитку и пиктограммы со шрифтом Брайля. Начальство решило, что люди с нарушением зрения в ЦИП попадать не будут, хотя практика показывает обратное: за решетку бросают и инвалидов, и старых людей.


Стоит отметить, что новый ЦИП будто нарочно расположен в одном из самых отдаленных и труднодоступных мест города, где нет никакой жилой застройки, а только заброшенный военный городок, промзона и глухой лесопарк по обе стороны. В августе 2020 года записи из жилых домов того, что происходило на территории Окрестина и как кричали люди за его оградой, подтвердили жестокие пытки протестующих.
Что ждет Окрестина?
Параллельно со строительством нового комплекса власти готовятся к масштабным работам на старом месте. Согласно документации, со 2 марта по 30 июня 2026 года в здании ЦИП на 1‑м переулке Окрестина запланирован «текущий ремонт».
Однако список работ выглядит более чем серьезно для обычного косметического ремонта. Согласно смете, в камерах планируется разобрать 387 м² дощатых полов.
Нужно отметить, что мы не знаем точное количество камер в ЦИП на Окрестина. Судить о том, что ремонт затронет все или большинство камер, можно только по косвенным сведениям.

В плане здание имеет размеры примерно 33 м х 13,5 м, что дает примерную площадь одного этажа около 445 м². В проекте нового ЦИП на улице Карвата площадь всех камер на одном этаже составляет около 60% общей площади этажа, можно предположить, что и старое здание устроено подобным образом. Тогда это означает, что менять полы будут в камерах на нескольких этажах.
Вместо досок там зальют полимерное покрытие по бетону. Это значит, что условия для «политических», которым часто приходится спать на полу в переполненных камерах, могут стать еще более жесткими — лежать на тонком полимере будет холоднее и тверже, чем на дереве.
Также на то, что работы затронут все камеры, может указывать то, что в смете прописана замена 100 м² оконных проемов и решеток. Учитывая небольшой размер тюремных окон (1,5-2,2 м² в камерах на ул. Карвата), это может означать замену стеклопакетов практически во всем здании.
Проведение таких работ невозможно без полного выселения содержащихся. Куда переведут людей на время ремонта, пока неизвестно. Официально о закрытии старого изолятора не сообщалось.
«Наша Нiва» — бастион беларущины
ПОДДЕРЖАТЬ
Комментарии