Мінскае замчышча — месца, з якога вырас сучасны мегаполіс і якое хавае шмат таямніц. Ад недабудаванага храма, што не мае аналагаў ні на Русі, ні за яе межамі, да дзіўна захаванага пахавання «мінскай княжны» з касой і ўпрыгожаннямі, чые паходжанне і статус застаюцца неразгаданымі.

Пра гісторыю адкрыццяў, іх лёс і надзвычайнае значэнне для навукі расказаў археолаг Вадзім Кошман падчас лекцыі «Мінскае замчышча і храм пачатку XII стагоддзя» ў Мінскай ратушы, прымеркаванай да выхаду яго новай кнігі, напісанай разам з Алесем Кунашам.
Пошукі замчышча
Яшчэ з 1920—1930‑х гадоў ішла дыскусія, дзе ён паўстаў: на рацэ Менка ці ў месцы ўпадзення Нямігі ў Свіслач. Апошнія археалагічныя даследаванні паказваюць, што летапісны Мінск, згаданы ў сувязі з бітвай на Нямізе ў 1067 годзе, хутчэй адносіцца да гарадзішча на Менцы, бо там матэрыялы значна больш раннія.

Аднак з канца XI стагоддзя, каля 1085 года, на тэрыторыі сучаснага Мінска ўзводзіцца магутная крэпасць. Яна перайшла да Глеба Менскага, і стала асновай развіцця горада. Замчышча развівалася да XVII—XVIII стагоддзяў, але ў віры гістарычных падзей знікла, і сёння ў цэнтры горада немагчыма адшукаць яго слядоў на паверхні.

У міжваенны час Мінскае замчышча нават не было лакалізаванае дакладна, але было ўзятае ў ліку першых пад ахову савецкай дзяржавай. У час вайны амаль ўся забудова была знішчана, 19 верасня 1945 года Васіль Тарасенка пачаў планамерныя даследаванні, якія цягнуліся да 1951-га.



Найбольш буйныя раскопкі ў 1957—1961 гадах правёў Эдуард Загарульскі, які шмат гадоў апрацоўваў матэрыял і прапанаваў сваю канцэпцыю паходжання Мінска.
Царква на Мінскім замчышчы
Тарасенка пачаў даследаванні Мінскага замчышча ў 1945 годзе і спачатку заклаў траншэі ў верхняй кропцы мясцовасці, памылкова палічыўшы яе самім замчышчам. Аднак менавіта гэтая памылка прывяла яго да галоўнага адкрыцця — знаходкі абсіднай часткі мураванага храма.


У 1947 годзе археолаг натрапіў на апсідную частку недабудаванай мураванай пабудовы. Храм ляжаў на глыбіні каля пяці з паловай метраў, што сведчыла пра магутны культурны слой, які паспеў нарасці над ім.
Адкрыццё выклікала сапраўдны навуковы рэзананс, бо аналагаў гэтаму сакральнаму будынку не знайшлося ні ў Кіеве, ні ў Чарнігаве, ні ў іншых цэнтрах. Архітэктурныя асаблівасці і памеры былі абсалютна арыгінальнымі. Гэта паставіла перад даследчыкамі складанае пытанне: калі ж была ўзведзена мінская царква?

На думку Тарасенкі, храм узводзіўся ў 1101—1119 гадах і быў непасрэдна звязаны з дзейнасцю князя Глеба Усяславіча. Загарульскі ж аднёс яго да больш ранняга часу — 1069—1073 гадоў, лічыў адным з першых збудаванняў на замчышчы і абапіраўся на летапіснае ўпамінанне Мінска ў 1067 годзе. Пазнейшыя даследчыкі, сярод якіх Алег Трусаў, таксама схіляліся да пачатку XII стагоддзя і зноў жа звязвалі святыню з імем Глеба. Сучасныя ж працы прапануюць больш асцярожную інтэрпрэтацыю: будаўніцтва магло пачацца пры Глебе Мінскім, але не выключана, што яго завяршылі ўжо яго нашчадкі Глебавічы ў першай палове XII стагоддзя.
Рускі ці раманскі помнік?
Аднак сапраўднай навуковай праблемай, якая і сёння застаецца без адназначнага адказу, з’яўляецца архітэктура мінскага храма, які не мае дакладных аналагаў ні на Русі, ні ў Еўропе.
Асаблівасць мінскай царквы ў тым, што яна была ўзведзена не ў плінфавай традыцыі, уласцівай Кіеву, Чарнігаву ці Полацку, а цалкам з каменю.

Прычым выкарыстоўваўся выключна шэры граніт, адбіраны з вялікай стараннасцю. На думку Кошмана, гэта сведчыць, што заказчык меў вытанчаны густ і імкнуўся стварыць нешта ўнікальнае, чаго не ведала ніводная іншая зямля. Відаць, для працы запрасілі арцель, якая не мела нічога агульнага з плінфавым дойлідствам.

Спробы аднесці храм да раманскай архітэктуры таксама спрэчныя, бо час яе пабудовы апярэджвае з’яўленне першых раманскіх святыняў у Польшчы, адкуль мог прыйсці гэты стыль.
Спробы растлумачыць паходжанне храма праз «заходні след» і шлюбы з польскай знаццю аказаліся бесперспектыўнымі, бо такія сувязі мелі ўсе княжацкія роды таго часу.
Чаму храм быў закінуты
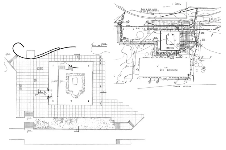
Асноўнае пытанне ў гісторыкаў — чаму храм так і не быў завершаны. Археалагічныя дадзеныя сведчаць, што будаўніцтва спынілася яшчэ на пачатковай стадыі. Вакол храма захаваліся сляды будаўнічай пляцоўкі — запасы каменю, два творы для падрыхтоўкі вапны. Але ўсё гэта засталося закансервавана, некранута. Сам храм быў завершаны толькі на «нулявым цыкле»: узведзены падмурак і прамазаны вапнавым растворам, каб паказаць заказчыку, як будзе выглядаць аб’ект. На гэтым будаўніцтва спынілася, і ніякіх прыкмет далейшай працы ці разбураных муроў не знойдзена. Нават камень не быў расцягнуты на гаспадарчыя патрэбы, што яшчэ раз сведчыць: працы так і не пачаліся ў поўным аб’ёме.
Асабліва паказальна, што апорныя слупы, неабходныя для ўзвядзення скляпення, не былі нават закладзены. На іх месцы археолагі выявілі пахаванні XII—XIII стагоддзяў, якія размяшчаліся проста па-над недабудаванымі канструкцыямі. Гэта сведчыць, што ўзводзіць сцены і скляпенні так і не пачалі. Знутры паспелі зрабіць толькі невялікую дэкаратыўную абліцоўку — напэўна, каб прадэманстраваць замоўцу будучы выгляд.
Замкавыя могілкі

Адным з найцікавейшых адкрыццяў Мінскага замчышча сталі могілкі, што ўзніклі ўнутры недабудаванай мураванай царквы. Усяго археолагі выявілі больш за два дзясяткі пахаванняў, якія датуюцца XII—XIII стагоддзямі і існавалі да пачатку XIV ст., пакуль тэрыторыя не страціла сакральнага значэння і не была занята звычайнай забудовай.
З пачатку XIII стагоддзя Мінск трапляе ў сферу ўплыву літоўскіх князёў, а ў сярэдзіне стагоддзя ўключаецца ў склад Вялікага Княства Літоўскага. Будаўнічыя планы змяніліся, і тэрыторыя, дзе раней бачылася княжацка-рэлігійная зона, была аддадзена пад звычайную забудову.

Тарасенка адзначаў, што ўсяго было зафіксавана 21 пахаванне. Труны мелі адметную форму і былі размешчаныя на адным узроўні, што сведчыць: у XII—XIII стагоддзях існавала выразнае ўяўленне пра планіроўку могілак і месца кожнага пахавання.
У 1950‑я выявілі яшчэ два пахаванні на ўсход ад апсіды. Гэта былі дзве труны, пастаўленыя адна за адной і якія, хутчэй за ўсё, належалі манахам.

Целы манахаў былі загорнутыя ў тканіну і накрытыя рагожай, абутак і іншыя дэталі захаваліся вельмі добра. Тканіна з гэтых пахаванняў захоўваецца сёння ў Музеі гісторыі Мінска. Сярод знаходак адзначаюцца і скураныя манаскія паясы, так званыя параманы.

Мінская князёўна
Найбольш вядомымі сталі першыя пахаванні, адкрытыя ў апсідзе храма: хлопчыка і дзяўчыны. Асабліва ўражвае дзявочае, якое захавалася выключна добра і дало даследчыкам каштоўны матэрыял для высноў пра абрады і сацыяльны статус памерлай. Фрагменты фундамента царквы выявілі яшчэ ў 1947 годзе, а ў 1949‑м археолагі натрапілі на апсідную частку, дзе ў левай частцы алтара і былі знойдзены гэтыя дзве драўляныя труны.

Дзяўчынку прыкладна пятнаццаці-шаснаццаці гадоў Тарасенка назваў «мінскай князёўнай» і гэтая назва замацавалася ў навуковым ужытку. Даследчыкі мяркуюць, што яна магла паходзіць з асяроддзя вышэйшай знаці — аднак гэта пакуль немагчыма даказаць дакладна — і памерла ад запаленчага захворвання.

«Мінская князёўна» і выяўленыя часткі яе пахавальнага ўбору. Скрыншот відэа
Захаванасць пахавання была выключнай: археолагі зафіксавалі шкілет, косы з валасамі, рэшткі тканіны і скураных упрыгажэнняў, а таксама вянок са свежых калісьці кветак і скураныя чаравікі з арнаментам. Гэта дало магчымасць аднавіць цэлы комплекс пахавальнай культуры XII стагоддзя.
Асаблівую ўвагу прыцягнуў галаўны ўбор — вянок, які ў хрысціянскай традыцыі абавязкова клалі памерлым. Для дзяўчат, што памерлі да замужжа, такі вянок фактычна быў падвянечным уборам. Побач былі выяўлены і іншыя дэталі ўбору — ваўняны пояс з круглым колцам і скураное аплечча, якое Тарасенка назваў баярска-княжацкім атрыбутам. Прычоска дзяўчыны з уплеценым вянком уражвае складанасцю і мае прамыя аналогіі ў агульнаславянскай традыцыі.

Пахаванне выклікала вялікі навуковы і грамадскі рэзананс. Рэшткі былі перададзены ў Акадэмію навук і часткова закансерваваны, аднак ужо ў пачатку 1950‑х гадоў яны былі пакінутыя без увагі і доўгі час захоўваліся ў скрынях. Лёс усіх знаходак склаўся па-рознаму, частку з іх перадалі ў Музей гісторыі Мінска, дзе правялі рэстаўрацыю. Асабліва каштоўнымі лічацца фрагменты вянка і адзенне, якія пацвярджаюць не толькі сацыяльны статус памерлай, але і важныя асаблівасці пахавальных звычаяў таго часу.
З улікам рэшткаў раслін і пылка даследчыкі дапусцілі, што пахаванне адбылося ў канцы лета, а па археалагічным кантэксце яго можна аднесці да сярэдзіны або другой паловы XII стагоддзя.
Сакральнае месца для менчукоў


Нават пасля заняпаду замчышча і ўрбанізацыі Мінска ў XVII—XVIII стст. тэрыторыя не была забытая. У культурных пластах гэтых часоў археолагі зноў знаходзілі пахаванні, што сведчыць: у народнай памяці месца захоўвалася як сакральнае, і нават у часы пажараў тут працягвалі хаваць людзей. Могілкі пры недабудаванай царкве сталі своеасаблівым мостам паміж рознымі эпохамі.

Пытанне захавання
Тарасенка ўсведамляў адказнасць за лёс зробленых адкрыццяў. Ужо ў 1945 годзе, падчас першых раскопак на Мінскім замчышчы, ён настойваў на неабходнасці захавання выяўленых драўляных канструкцый, фрагментаў вулічнай сеткі і каменных падмуркаў. Тарасенка прапаноўваў стварыць спецыяльны гістарычны музей, дзе гэтыя знаходкі маглі б быць захаваныя для навукі і грамадскасці.

У 1949 годзе, адразу пасля адкрыцця падмуркаў каменнай царквы, ён падрыхтаваў праект па захаванні гэтага ўнікальнага аб’екта. У ім ён падкрэсліваў значэнне адкрыцця для гісторыі Мінска, Беларусі і ўсяго старажытнарускага дойлідства, а таксама прама вызначаў задачы перад Акадэміяй навук — забяспечыць ахову, арганізаваць нагляд, паставіць агароджу і нават збудаваць ахоўны шатёр.

Пытанне стварэння накрыцця над фундаментамі паўставала неаднаразова. У 1957 годзе быў прапанаваны праект кампактнага павільёна памерам 16 х 18 метраў з агляднай пляцоўкай. Але да рэалізацыі ён не дайшоў. У канцы 1950‑х — пачатку 1960‑х гг. падмуркі стаялі адкрытымі, паступова зарасталі травой і разбураліся, у той час як вакол ішла актыўная забудова. На камянях нават складалі будаўнічыя блокі, што сімвалічна падкрэслівала безабароннасць помніка.

Асабліва адметным стаў праект 1966 года, распрацаваны напярэдадні 900-годзя Мінска. Ён выглядаў футурыстычна: планавалася збудаваць вялікі бетонны комплекс з дэкаратыўнымі фасадамі, на якіх былі намаляваныя «танцуючыя чалавечкі» — матывы, падобныя да петрогліфаў. Унутры павінны былі быць закансерваваныя як падмуркі царквы, так і рэшткі драўлянай забудовы. Праект меў падтрымку дзяржаўных і партыйных органаў, аднак яго ажыццяўленне ўскладнялася адсутнасцю адладжаных метадаў кансервацыі драўніны і каменю.

Да гэтага дадавалася і ідэалагічная перашкода: у часы, калі па ўсёй краіне знішчаліся храмы і касцёлы, цяжка было чакаць, што ўлады дазволяць будаваць спецыяльны павільён для аховы рэлігійнага помніка.
У выніку знайшлі самае простае кампраміснае рашэнне: за 30 метрах на поўнач ад сапраўдных падмуркаў стварылі муляж з каменю. Ён існуе і сёння, хоць праз яго і прараслі дрэвы, але ён ўсё яшчэ дае ўяўленне пра маштаб і планіроўку таго сакральнага аб’екта, што некалі пачаў будавацца на замчышчы.
Часам гучалі прапановы ўзвесці замкавую царкву нанова, у поўным маштабе. Аднак, як падкрэсліваюць даследчыкі, гэта метадалагічна памылкова: аднаўленне таго, што так і не было завершана, фактычна азначала б фантазіі пра чужую задуму. Куды больш слушна, на думку навукоўца, стварыць мадэль, якая дасць уяўленне пра тое, як святыня магла выглядаць.
«Наша Нiва» — бастыён беларушчыны
ПАДТРЫМАЦЬНа месцы Мінскага замчышча з'явіцца памятны знак
Мінскі краязнавец расказаў, якім было Замчышча і чаму знікла з карты сталіцы
Новыя сцены і страчаныя маляўнічыя далягляды. Як выглядае Навагрудскі замак пасля рэканструкцыі
Сакрэты пабудовы першага Менска: польскія тэхналогіі і святыя дрэвы для сцен
Каб пабачыць старажытны Менск, трэба ехаць у Германію? Чаму на Захадзе па-іншаму глядзяць на славянскія крэпасці
Пазайздросцілі савецкаму Кіеву. Як у Мінску ледзь не адбудавалі велічную браму, якой ніколі не было
Цяпер чытаюць
«У Віцебску заходзіў у тралейбус і казаў «Слава Украіне!». Украінца ў 67 гадоў пасадзілі за каменты, напісаныя пасля гібелі хроснай дачкі пад абстрэлам у Кіеве

Каментары
Неверагоднае месца, вельмі дзіўная, але ўражваючая атмасфера