У сакрэтным і футурыстычным мінскім шматпавярховіку прадаецца трохпакаёвая кватэра. Кошт квадрата ўражвае
Жыллё на сёмым паверсе дома, які нагадвае карабель, прадаецца па рэкорднай цане. Квадрат у кватэры ацанілі ў 4100 даляраў, піша Realt.by.

Жылы дом побач з праспектам Пераможцаў у Мінску ўзвялі ў рэкордна кароткія тэрміны — яго пабудавалі літаральна за год.

Новабудоўля на прэстыжнай вуліцы Ціхай была гатовая яшчэ мінулай восенню, але інфармацыя пра тое, каму дастануцца кватэры ў доме, так і засталася ў сакрэце: у свабодны продаж жыллё ў доме-караблі не трапіла.
Па сваёй архітэктуры дом пераклікаецца з суседнім бізнэс-цэнтрам Riviera Plaza. З-за гэтага падабенства мясцовыя жыхары нават спачатку прымалі жылы дом за офіс.
У выніку, шматпавярховік стаў пятым круізным лайнерам, прышвартаваным побач з вадасховішчам Дразды.

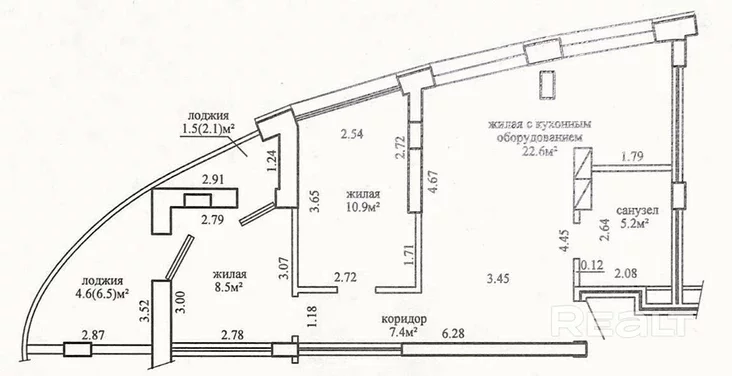
Кватэра, выстаўленая на продаж, размешчана на сёмым паверсе. Агульная плошча жылля складае 60 квадратных метраў, жылая — 42 квадратныя метры.

Кватэра складаецца з кухні-гасцёўні з панарамнымі вокнамі, а таксама двух жылых пакояў. З вокнаў адкрываецца від на вуліцу, у тройцы — некалькі лоджый (з выхадам з аднаго пакоя) і сумешчаны санвузел.
Жыллё прапануецца без аздаблення.

Мяркуючы па фатаграфіях з аб'явы, унізе дома размясцілася рэспектабельнае лобі.

Тэрыторыя каля дома-закрытая, на ўездзе ўсталяваны шлагбаўм.
Крыху побач ад новабудоўлі размяшчаецца дзіцячая пляцоўка. Таксама тут ёсць зарадка для электрамабіляў і велапаркоўка.

Недалёка ад дома размяшчаецца бізнес-цэнтр са спа − комплексам, насупраць − ЖК «Лазурыт» і «Мінск Арэна», у крокавай даступнасці — гандлёвы цэнтр «Арэна-Сіці» з гіпермаркетам, кінатэатрам і буцікамі. Пры гэтым сам дом стаіць у глыбіні ад праспекта — бліжэй да прыватнай забудовы.
Кошт кватэры — 249 тысяч даляраў (4109 даляраў — за метр).
Каментары